20×40 घरेलू घर का नक्शा
योजना की शुरुआत में लिविंग कम डाइनिंग रूम आता है, जिसका साइज 8×9 है, इस एरिया में आप टीवी लगा सकते हैं और एक अच्छा सोफा सेट रख सकते हैं, उसके बाद यहां एक छोटा भगवान का कमरा भी बनाया गया है। जिसका साइज 5×5 है, यहां आप भगवान को स्थापित कर आराम से पूजा पाठ कर सकते हैं| इसके बाद यहां से आगे बढ़ते हुए किचन आता है जिसका साइज 5×5 है और यह एक मॉड्यूलर किचन है जिसमें हर तरह की आधुनिक सुविधाएं उपलब्ध होंगी जो आपके काम को आसान बनाती हैं।इस प्लान में आपको सब कुछ बेहद आधुनिक और आकर्षक रूप में देखने को मिलेगा, जो आपके घर आए मेहमानों को भी काफी पसंद आएगा।
30×30 घरेलू घर
का
नक्शा
ग्राउंड फ्लोर पर ग्रेट रूम, किचन, पैसेज, पूजा रूम, ब्रेकफास्ट एरिया, अटैच टॉयलेट के साथ मास्टर बेडरूम और कॉमन बाथरूम है। आपको इस वेबसाइट से अधिक वास्तु गृह योजनाएं मिलती हैं। प्रत्येक आयाम फीट और इंच में दिया गया है।मुख्य द्वार पूर्व दिशा में रखा जाता है। किचन को दक्षिण-पूर्व दिशा में रखा जाता है। पूजा कक्ष पूर्व दिशा में बनाया गया है। नाश्ता क्षेत्र दक्षिण की दिशा में प्रदान किया जाता है। मार्ग घर के बीच में प्रदान किया जाता है। कॉमन बाथरूम उत्तर दिशा में बनाया गया है। मास्टर बेडरूम वायव्य कोण में बनाया गया है। साथ ही पश्चिम दिशा में अटैच्ड बाथरूम की भी व्यवस्था है।भूतल पर, रसोई का आयाम 8'x 6'3" है। पूजा कक्ष का आयाम 4'6"x 6'6" है। बड़े कमरे का आयाम 15'x 11'6" है। . मार्ग का आयाम 12'x 11'9'' है। नाश्ता क्षेत्र का आयाम 8'x 11' है। सामान्य बाथरूम का आयाम 8'x 6' है। मास्टर बेडरूम का आयाम 15'x 10' है। और एक संलग्न बाथरूम का आयाम 6'x 10' है। यह 900 वर्गफुट के साथ पूर्व की ओर एक 2बीएचके हाउस प्लान है।
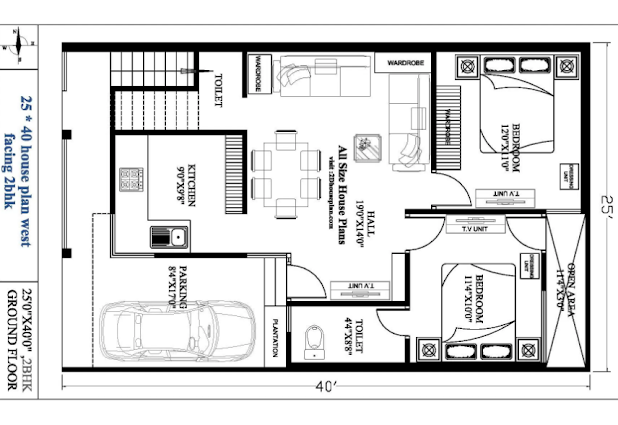
30×50 घरेलू घर का नक्शा
इस हाउस प्लान में पार्किंग एरिया का साइज 8×9 है, जहां खिड़की के साथ वेंटिलेशन भी दिया गया है। पोर्च से आगे जाकर लिविंग रूम आता है जो काफी बड़ा है और यहां भी खिड़कियों के साथ वेंटिलेशन दिया गया है क्योंकि वेंटिलेशन बहुत जरूरी है और लिविंग एरिया का साइज 17×10 है। इस कमरे के एक ही तरफ एक शौचालय है, इसे घर के सभी लोग इस्तेमाल कर सकते हैं, इसका साइज 6’4×7 है, यहां वेंटिलेशन किया गया है, कोई खिड़की नहीं है. लिविंग रूम के बाद किचन आता है, यहां आपको अटैच्ड वॉश एरिया भी मिल रहा है जिसका साइज 6’4×3 है और किचन का साइज 9×8’4 है।
हम आपके सपनों के घर के लिए कुछ 15×40 हाउस प्लान देखेंगे ये 15x40 घर कार पार्किंग के साथ 2 बीएचके और 1 बीएचके हैं 600 वर्ग फुट के हाउस प्लान को भारतीय शैली में डिजाइन किया गया है और इसे बजट में बनाया जा सकता है यह 15×40 हाउस प्लान एक 2 बीएचके घर है जो 7'-3"x6'-6.5" आकार के बरामदे के साथ आता है यहां आप अपनी दो गाडिय़ां पार्क कर सकते हैं या गार्डन बना सकते हैं 10'-6"x12'-0" आकार का एक ड्राइंग रूम डिज़ाइन किया गया है, जो बरामदे में खुलता है ऊपर जाने के लिए एल आकार की सीढ़ियां दी गई हैं बरामदा में एक खिड़की है जो बरामदे की ओर खुलती है और अच्छी मात्रा में धूप और वेंटिलेशन लाती है।
.png)
.png)





0 Comments